VIVIENDA UNIFAMILIAR. Rocafort, Valencia
VIVIENDA UNIFAMILIAR.
Rocafort, Valencia
Información gráfica del proyecto
Descripción del proyecto
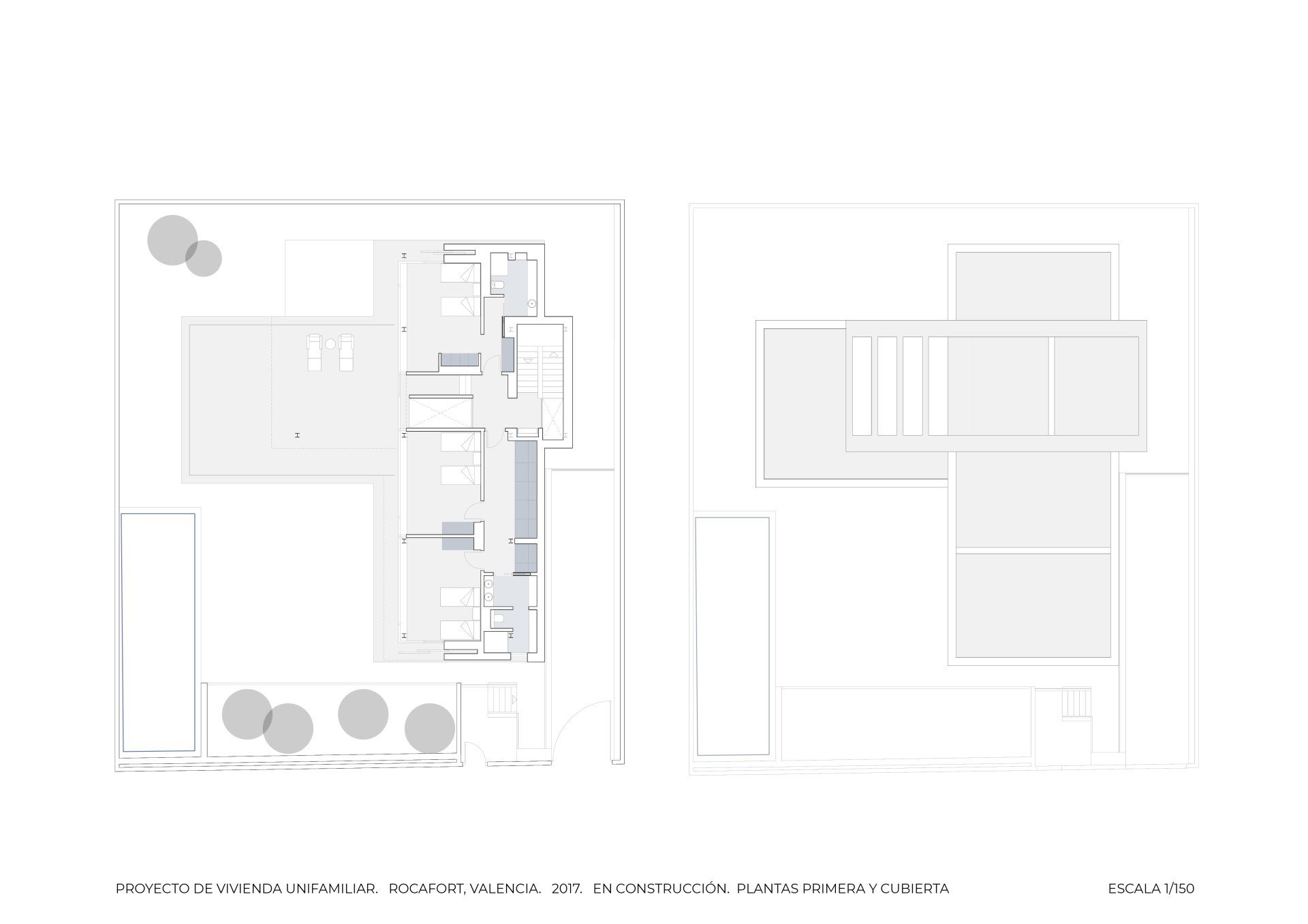
Se proyecta una vivienda unifamiliar aislada acomodada a la realidad topográfica existente en la parcela, formada por planta sótano, planta baja y planta primera.
La planta sótano tiene un uso mayoritario de garaje y alberga una escalera de acceso al interior de la vivienda, cuarto de instalaciones, aseo, almacén, etc ....
La planta baja, planta de acceso, consta de vestíbulo de acceso, cocina-office con despensa, aseo para invitados, dormitorio principal con vestidor y baño incorporado, escalera de conexión con las diversas plantas y salón-comedor que da acceso a una terraza que recae sobre el jardín y la piscina.
La planta primera la forman tres dormitorios con armarios incorporados y dos baños.
La vivienda se resuelve mediante dos volúmenes claramente diferenciados conformando un prisma único en forma de cruz, de modo que el lado longitudinal en la dirección Este-Oeste, recoge los diferentes dormitorios y baños, tanto en planta baja como en planta y a este se le adosa perpendicularmente en la dirección Norte-Sur- los espacios de relación, salón estudio, terraza etc.
De esta manera, el espacio de la parcela se concentra delante del edificio conformando una plaza con orientación dominante Este, en la que se realizará una explanada verde y se situará la piscina.
El volumen de salón-comedor se ha tratado de la manera más transparente posible abriendo dicho volumen en ambas orientaciones Este-Oeste, de modo que la sensación de estar en este espacio se perciba como una relación bi-unívoca entre interior y exterior, y se potencie la relación con el jardín y el espacio físico de la parcela.
Esa misma idea, es la que existe en la realización del pequeño estudio acristalado existente en la planta superior, en la que se propone la realización de una caja de vidrio abierta. Detrás de dicho volumen se encuentra la terraza destinada a orientación de invierno.
Se optó por la realización de un patio inglés a cota -2.60m de la rasante del terreno, en el lado longitudinal que recae al Este para poder dotar al sótano de iluminación y ventilación natural, de manera que mediante las diferentes aperturas de huecos en el interior de la vivienda, se produzca una ventilación conjunta de todas las estancias.




