EDIFICIO DE VIVIENDAS VPP " TERRETA ". Malilla, Valencia
EDIFICIO DE VIVIENDAS VPP " TERRETA ". Malilla, Valencia
Información gráfica del proyecto
Información gráfica del proyecto
Descripción del proyecto
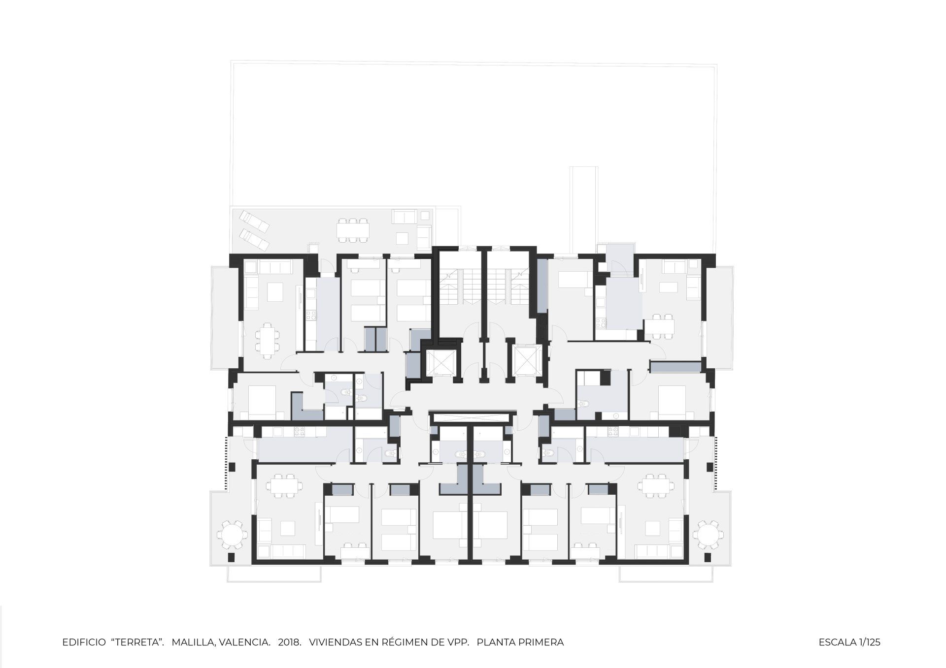
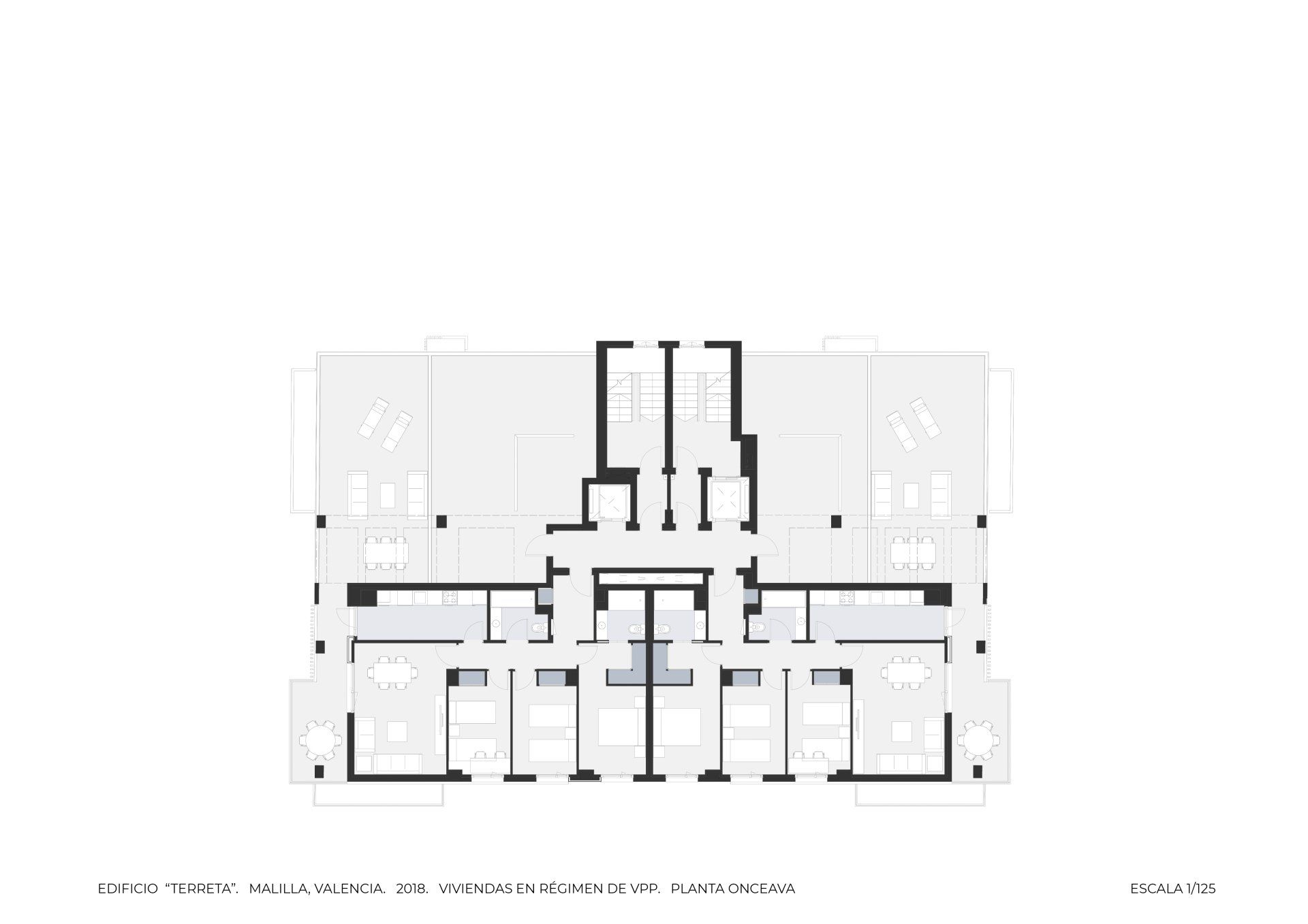
El proyecto es un edificio de uso residencial plurifamiliar (Rpf) compuesto de una torre exenta con 13 plantas sobre rasante y 44 Viviendas de Protección Pública (VPP), un local comercial, dos sótanos de aparcamiento y zona común.
En la planta baja se ubican los aparcamientos de bicicletas, instalaciones comunes del edificio, accesos al mismo, zonas comunes proyectándose una zona de juegos o esparcimientos comunes, el local comercial y el zaguán que da acceso a cada una de las escaleras planteadas en proyecto.
El uso aparcamiento privado se proyecta en bajo rasante y está dispuesto en dos plantas independientes entre sí.
Las 12 plantas altas destinadas a vivienda, se estructuran alrededor de un núcleo vertical formado por dos escaleras y dos ascensores.
Éstas plantas altas se dividen en dos cuerpos; El primero, alberga de la planta 1a hasta la planta 10a incluida, cuatro viviendas por planta y el segundo, que se compone de las plantas 11a hasta la 12a, tiene dos viviendas por planta. En total, el edificio está formado por 14 tipologías de viviendas y dos terrazas comunitarias.



