EDIFICIO DE VIVIENDAS "Nou D´Octubre". Valencia
EDIFICIO DE VIVIENDAS "Nou D´Octubre". Valencia
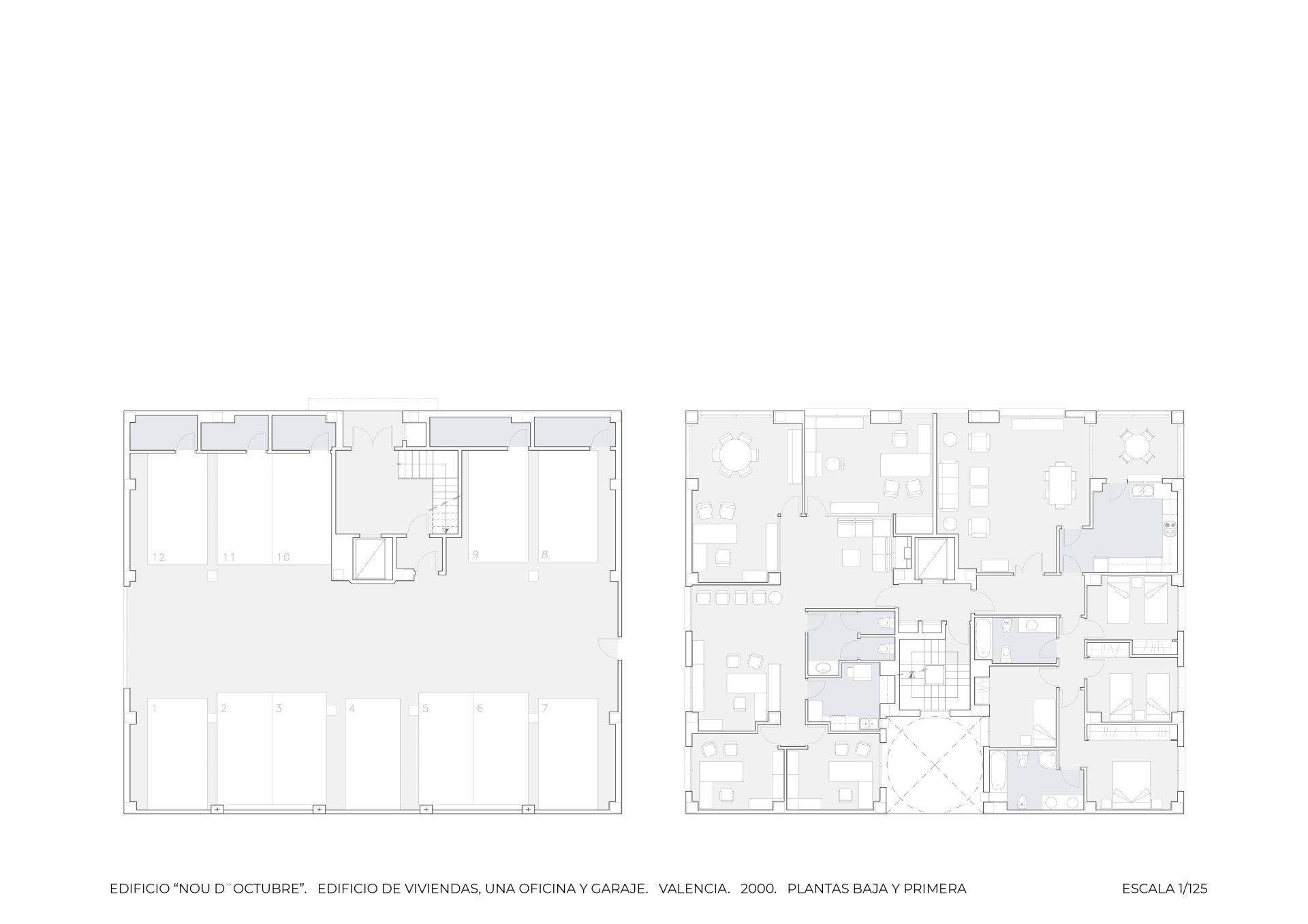
Información gráfica del proyecto
Descripción del proyecto
El Edificio conocido como "Nou d´Octubre", es un Edificio de 9 viviendas y una oficina en planta primera.
Situado en la ciudad Valencia, este proyecto de nueva planta se compone de 7 plantas.
La planta baja se destinada al aparcamiento y el zaguán. La planta primera alberga unas oficinas y una vivienda y las plantas altas, siguen la única tipología de vivienda de manera simétrica. Dicha tipología ,consta de: un gran Salón-Comedor y Cocina, ambos espacio abiertos a un balcón de buen tamaño, dos dormitorios dobles, uno de matrimonio y uno sencillo, dos baños completos y comparten un patio de luces. La planta de cubierta es de uso común para los vecinos y alberga en la parte central el casetón del núcleo vertical y las instalaciones formando una figura semicircular característica.
En alzado, la fachada se remata con arco venturiano a modo de homenaje al arquitecto.



