CENTRO CULTURAL GENERAL TOVAR. BANCAJA
CENTRO CULTURAL GENERAL TOVAR. BANCAJA
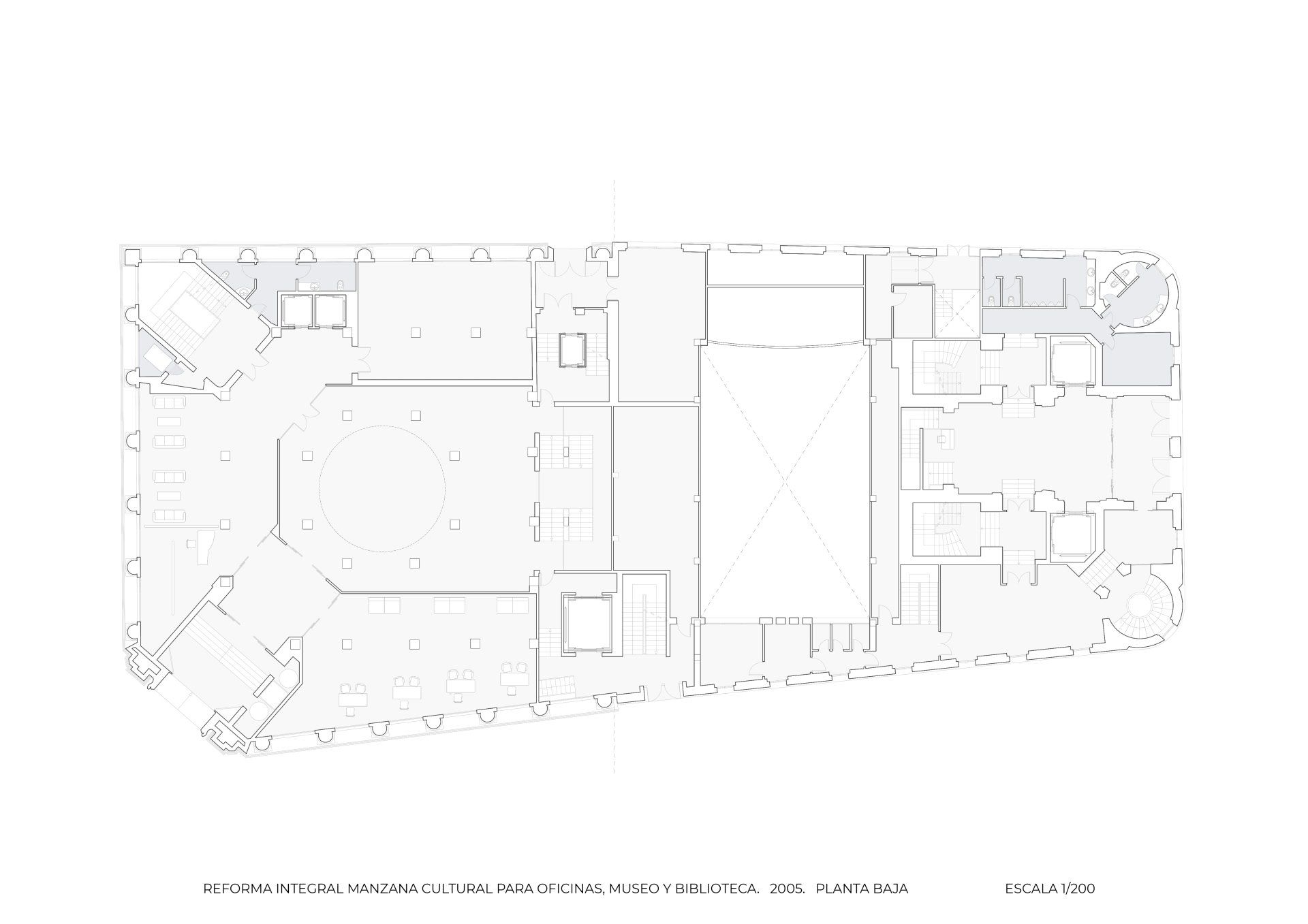
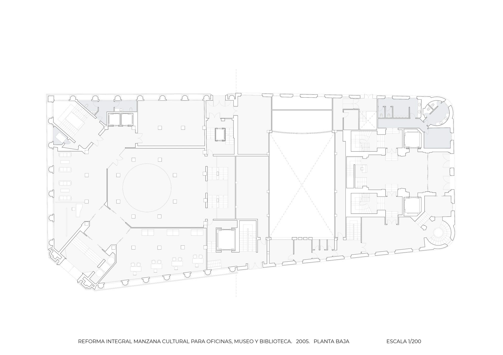
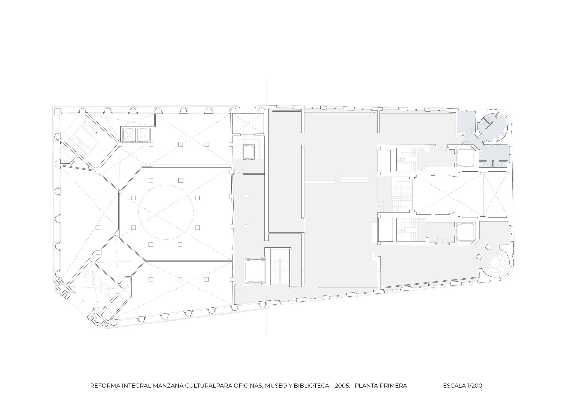
Información gráfica del proyecto
Información gráfica del proyecto
Descripción del proyecto
Se trata de un proyecto de rehabilitación integral para centro cultural multi-disciplinar, en el que se realizan actividades museísticas, lúdicas y de estudio.
El edificio de arquitectura ecléctica, situado en la Plaza Tetuán de Valencia, es un edificio emblemático de la Obra Social Bancaja resultado de la unión de la sede de la Caja de Ahorros y Monte de Piedad (XX) junto con la Residencia de Manuel Gómez Fos (XIX).
La reforma para convertirlo en un único inmueble se realizó entre 2005 y 2007 y en su interior se compone de salas de conferencias, un salón de actos, salas de exposiciones, una biblioteca y una tienda.
Los objetivos del proyecto fueron:
1. Rehabilitar las fachadas del edificio Glorieta, restaurar un patio de luces, restaurar la cubierta plana transitable, 2. Reorganizar las circulaciones de los edificios junto con la ampliación de la actividad (Creímos especialmente relevante el cambio de entrada al salón de actos por el edificio Glorieta. De esta forma, las casi cerca de 400 personas que asistirán a los eventos culturales estarían en una sala de espera exclusiva para el salón de actos).
3. Unir las plantas segunda y tercera de Glorieta con la tercera y cuarta de la Fundación, para conseguir una gran sala de exposiciones, dado que las dos plantas tienen casi la misma cota de altura. (Unimos los edificios puntualmente y conservamos su independencia espacial y funcional). En la planta segunda de Glorieta se propuso cubrir el patio para proteger la cúpula de planta baja y primera.
4 Eliminar barreras arquitectónicas y dar accesibilidad al edificio.
5 Incorporar nuevas medidas de protección contra incendios.



























