EDIFICIO DE OFICINAS "CEMECO". Valencia
Información gráfica del proyecto
Descripción del proyecto
Realizamos un proyecto de reforma, habilitación y prevención contra incendios de un edificio administrativo para el centro de cálculo de la Sede Central de Bancaja.
El edificio Cemeco se compone de una planta de sótano, planta baja, seis plantas altas, (en la planta segunda existe una zona de doble altura) y casetones de Instalaciones.
La planta sótano destinada a aparcamiento e instalaciones tuvo como objeto el mejorar las medidas de protección contra incendios y dotar de ventilación al garaje.
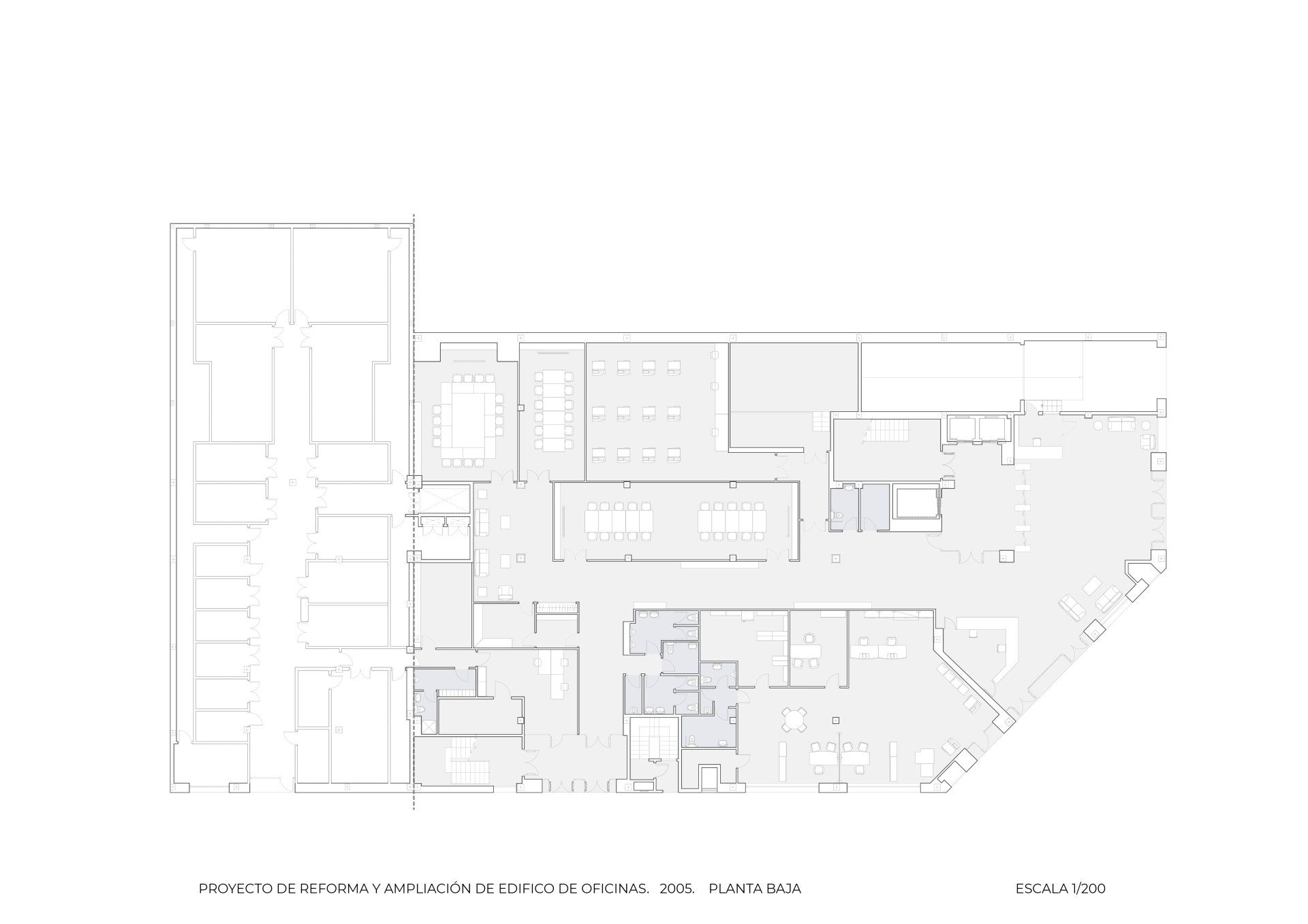
La planta baja destinada a uso Administrativo y salas de Instalaciones. En dicha sala, se planteó la reducción de su superficie y, en su lugar, se habilitaron salas de visitas externas.
En las plantas primera y segunda a doble altura está localizado el centro de cálculo CPD.
Las plantas se componen del núcleo de servicio (en el que se ubican el núcleo de comunicación vertical de escalera y tres ascensores), zona de esparcimiento y descanso, dos núcleos de aseos habilitados para minusválidos y con cuarto de limpieza). En los locales anexos se situaron la Zona de CPD y la de técnicos informáticos.
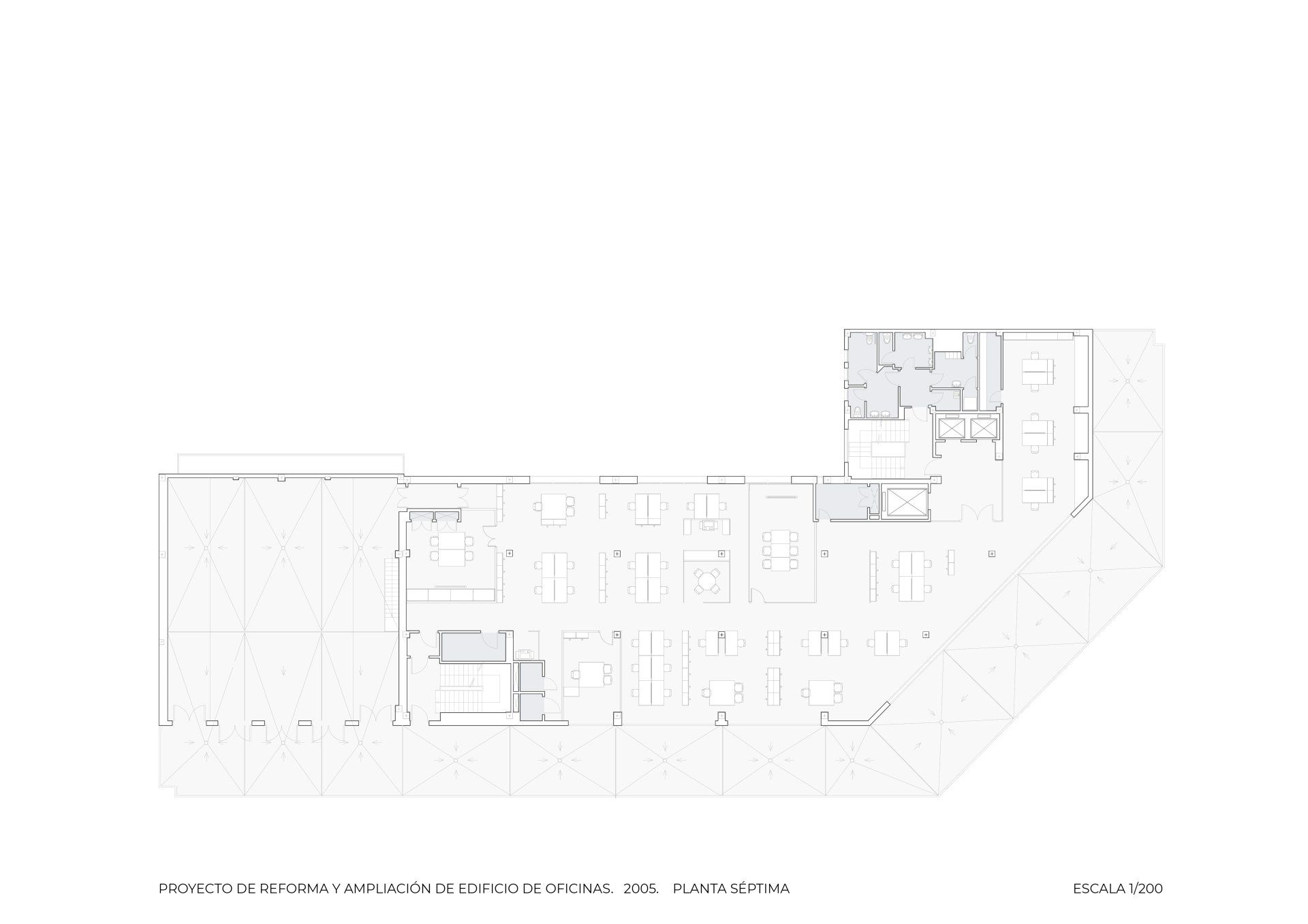
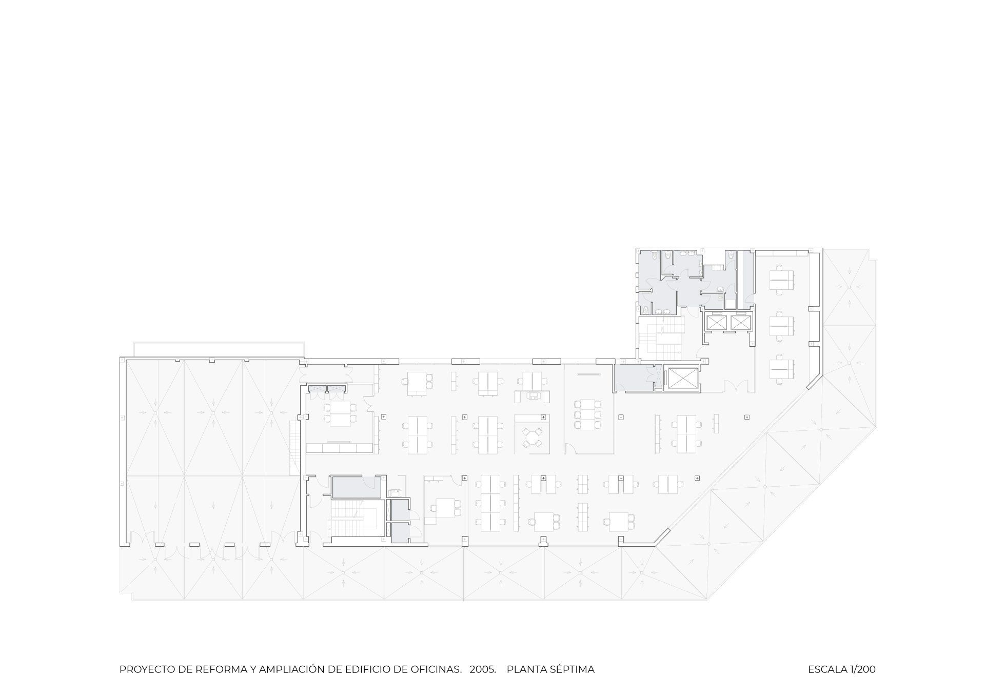
Las plantas altas ( de la 3ª a la 6ª), son uso Administrativo de carácter restringido al propio personal autorizado. Las plantas se componen de un núcleo de servicio igual que en las plantas anteriores, y una zona de trabajo de distribución abierta y flexible para grupos de trabajo y despachos administrativos.
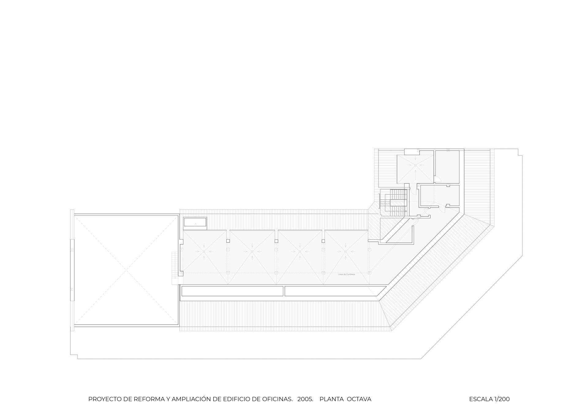
El proyecto también planteó construir un ático para trasladar las instalaciones a su cubierta. La planta está compuesta por los siguientes elementos: núcleo de servicio en el que se ubican el núcleo de comunicación vertical de escalera y tres ascensores, dos núcleos de aseos habilitados para minusválidos y con cuarto de limpieza.







